
La Casa Gomis, situada en el estany de la Ricarda del Prat de Llobregat, es una obra maestra construida por el arquitecto catalán Antonio Bonet Castellana para Ricardo Gomis e Inés Bertrand.
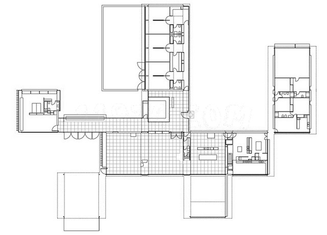
En su inicio estaba proyectada en dos niveles para así evitar las inundaciones que provoca la variación del nivel freático. La casa se desarrolló finalmente en un solo nivel sobre una plataforma que la eleva aproximadamente 1 metro del entorno de manera muy disimulada. Se trata de una arquitectura del movimiento moderno racional y ordenada bajo unos módulos que se agregan, en los que la forma de la bóveda de la cubierta se lleva el protagonismo.
Durante su construcción Antonio Bonet estaba viviendo en Argentina por lo que la casa se ejecutó con la ayuda del arquitecto encargado, el Sr. Comas, y el constructor, el Sr. Bofill.
En 1997, tras un complejo estudio del estado de la casa así como de la obra de Bonet, Fernando Álvarez Prozorovich y Jordi Roig fueron los encargados en hacer la cuidadosa restauración centrada en la cubierta y carpintería.
En la actualidad Marita Gomis, hija de los propietarios, permite visitar la casa a grupos, dando a conocer todos los rincones y detalles de su historia y construcción. Es una visita muy recomendable.




